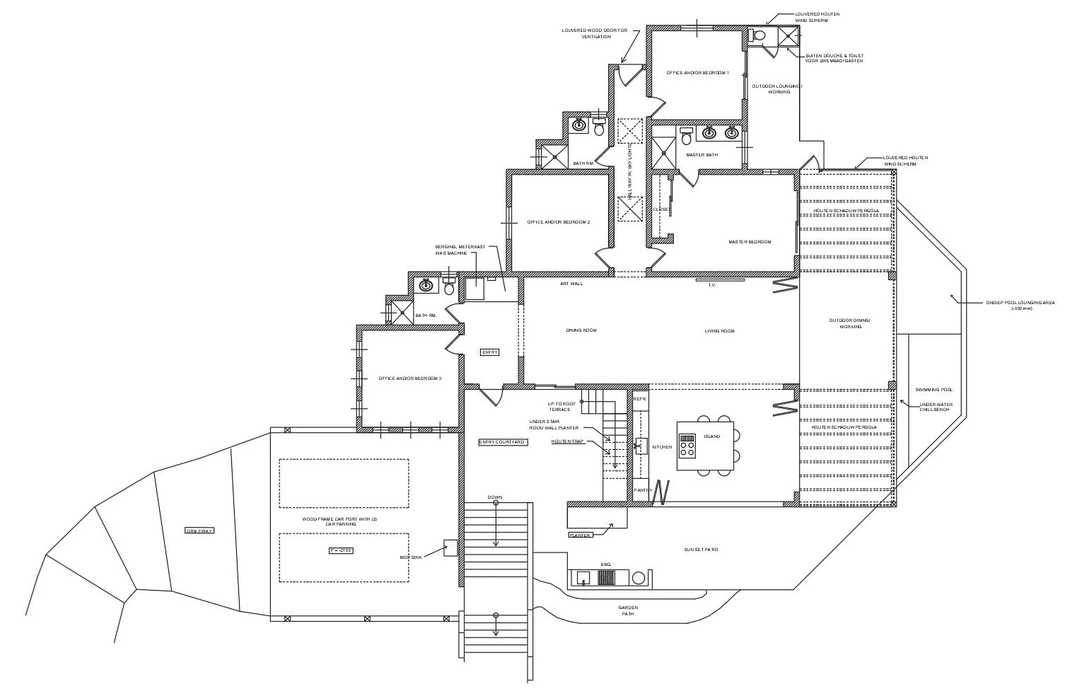
Wrightian Tropical Modern Fusion Home APC Pension Fund Sub Division Brakkeput Noord, Curacao

New 4,550 SF villa - Private client

Location: APC Pension Fund, Brakkeput Noord

Appraised market value : $1,150,000

  • Status: Permit issued, Site grading in progress, Pre-construction planning in progress

  • Specifications: 4 bedrooms, 3 bathrooms, roof deck, out-door living + kitchen, ocean views, infinity edge pool, 4,550 SF

Out-door living with ocean views at it’s finest

Previous
Previous

New Mediterranean villa - completed

Next
Next

New Morrocan Riad inspired home - under construction